Yêu cầu tư vấn thiết kế nhà cấp 4 nhỏ 50m2 của vợ chồng anh Minh ở Đông Anh – Hà Nội:" Chào các kiến trúc sư, tôi năm nay 27 tuổi và mới lập gia đình, hiện tại vợ tôi vừa có em bé. Hai vợ chồng tôi cũng tích cóp được chút ít vốn liếng tuy không nhiều. Vợ chồng tôi dự tính sẽ xây một ngôi nhà cấp 4 nhỏ xinh trên khu đất 50m2 được bố mẹ cho từ khi cưới nhau để có không gian thoải mái hơn. Vậy xin nhờ các kts tư vấn giúp tôi các mẫu nhà có thể xây trên diện tích đất 50m2 với chi phí xây dựng ở mức vừa phải (trong khoảng vài trăm triệu). Xin chân thành cảm ơn!" - anh Nguyễn Văn Minh – email: minhnguyenhttxxxx@gmail.com
Có lẽ ý định xây một ngôi nhà nhỏ xinh với diện tích vừa phải là mong muốn của rất nhiều cặp vợ chồng trẻ chứ không riêng gì vợ chồng anh Minh. Những ngôi nhà cấp 4 khoảng 50m2 với chi phí xây dựng khoảng 200 – 300 triệu là chi phí đủ tầm khả năng kinh tế của họ. Đó cũng sẽ là những không gian sống khá phù hợp cho những gia đình vợ chồng mới cưới hoặc những gia đình có 3-4 thành viên.
Thực tế hiện nay cho thấy, rất nhiều những cặp vợ chồng trẻ hiện nay(mà vợ chồng anh Minh là một ví dụ) thường sẽ có xu hướng tích cóp được một khoản tiền nhỏ để chuẩn bị cho tương lai như xây nhà hoặc sinh con. Tuy nhiên số tiền tích cóp được thường không lớn do vậy để thực hiện mong muốn xây nhà thì họ sẽ chỉ lựa chọn được những ngôi nhà có diện tích nhỏ khoảng 50m2 và chi phí xây dựng không quá cao.
Hiểu được mong muốn của họ, Kiến trúc sư chúng tôi đã tổng hợp và chia sẻ đã đưa ra 50 mẫu nhà cấp 4 nhỏ 50m2 triệu người mê với nhiều hình khối cùng kiểu dáng kiến trúc đa dạng, mới mẻ. 50 mẫu nhà cấp 4 nhỏ 50m2 triệu người mê dưới đây thường có chi phí xây nhà dao động từ 200 - 300 triệu. Hãy cùng chúng tôi tham khảo nhé!
Bạn đọc cũng có thể tham khảo thêm: Những mẫu nhà mái thái 700 triệu với thiết kế đẹp mắt
Theo như yêu cầu tư vấn thiết kế của anh Nguyễn Văn Minh, kiến trúc sư chúng tôi đưa ra phương án thiết kế nhà cấp 4 diện tích khoảng 50m2 có 2 phòng ngủ dành cho vợ chồng và con của anh như sau:

Hình ảnh: Mẫu thiết kế nhà cấp 4 diện tích dưới 50m2
Phương án thiết kế nhà cấp 4 nhỏ 50m2 cho gia đình anh Minh được kiến trúc sư chúng tôi gợi ý như trên đây. Hình khối kiến trúc đơn giản kết hợp vật liêu xây dựng ở mức trung bình sẽ phù hợp với kinh tế của gia đình trẻ như vợ chồng anh.

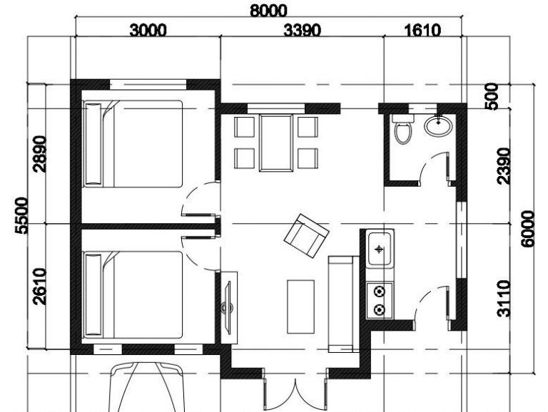
Hình ảnh: Bố trí công năng nhà cấp 4 nhỏ 50m2
Hai phòng ngủ của mẫu nhà cấp 4 được bố trí một bên, phòng khách và phòng ăn được thiết kế bố trí tại giữa căn nhà, phần cửa chính vào nhà được bố trí hơi lệch chừa phần nhà vệ sinh và nhà bếp.
Công năng của mẫu nhà cấp 4 nhỏ 50m2 được thiết kế mang tính lâu dài. Cụ thể, khi con còn nhỏ thì có thể ngủ với bố mẹ, phòng ngủ con có thể là phòng dành cho bố mẹ bên nội, ngoại trông cháu. Sau này khi con lớn thì sẽ thiết kế thành phòng ngủ cho con..
Mẫu thiết kế này chỉ mang tính chất tham khảo cho bạn đọc. Nếu các bạn muốn xây nhà tốt nhất nên tìm đến đơn vị tư vấn thiết kế để có được mẫu nhà đẹp và chất lượng nhất.
Chi phí xây nhà cấp 4 nhỏ 50m2 cũng là vấn đề được nhiều người quan tâm vì nó chịu ảnh hưởng từ kinh tế gia đình. Dưới đây kiến trúc sư chúng tôi sẽ đưa ra cách tính sơ bộ cho phần chi phí xây nhà cấp 4 nhỏ 50m2 bạn đọc có thể tham khảo. Tuy nhiên chi phí xây dựng thực tế có thể sẽ chênh lệch do nhiều yếu tố tác động nên các gia chủ nên cân nhắc kỹ lưỡng nhé!
Cách tính chi phí như sau:
- Đơn giá xây th: từ 2.600.000 - 3.200.000/m2
- Đơn giá xây nhà trọn gói: từ 4.000.000 - 6.000.000/m2
- Móng băng từ 30% - 50% đơn giá xây thô
Đối với công trình nhà cấp 4 nhỏ 50m2 mà kiến trúc sư chúng tôi tư vấn thiết kế cho gia đình anh Minh, nếu sử dụng vật tư trung bình thì đơn giá xây nhà trọn gói hoàn thiện = 4.5 triệu/m2.
==> Mẫu nhà cấp 4 nhỏ 50m2 = Diện tích sử dụng 50m2 + Móng băng
Trong đó, Chi phí xây dựng cho diện tích sử dụng: 50m2x4.5 triệu= 225 triệu đồng
Móng băng = 50m2 x 1.4 triệu (50% giá xây thô trung bình 2.8 triệu) = 70 triệu. Tổng chi phí 225 + 70 = 295 triệu VND
Để bạn đọc và khách hàng có thêm lựa chọn cho những mẫu nhà cấp 4 nhỏ 50m2 chúng tôi sẽ đưa ra 50 mẫu thiết kế đẹp và dễ thực hiện dưới đây. Các mẫu thiết kế đa dạng về kiểu dáng kiến trúc, kiểu mái từ mái ngói, mái tôn, mái thái, mái bằng, nhà có gác lửng cho đến những công trình mang kiến trúc độc đáo lạ mắt. Mời bạn đọc cùng chiêm ngưỡng:

Mẫu nhà cấp 4 nhỏ 50m2 - mẫu 1

Mẫu nhà cấp 4 nhỏ 50m2 - mẫu 2

Mẫu nhà cấp 4 nhỏ 50m2 - mẫu 3

Mẫu nhà cấp 4 nhỏ 50m2 - mẫu 4

Mẫu nhà cấp 4 nhỏ 50m2 - mẫu 5

Mẫu nhà cấp 4 nhỏ 50m2 - mẫu 6

Mẫu nhà cấp 4 nhỏ 50m2 - mẫu 7

Mẫu nhà cấp 4 nhỏ 50m2 - mẫu 8

Mẫu nhà cấp 4 nhỏ 50m2 - mẫu 9

Mẫu nhà cấp 4 nhỏ 50m2 - mẫu 10

Mẫu nhà cấp 4 nhỏ 50m2 - mẫu 11

Mẫu nhà cấp 4 nhỏ 50m2 - mẫu 12

Mẫu nhà cấp 4 nhỏ 50m2 - mẫu 13

Mẫu nhà cấp 4 nhỏ 50m2 - mẫu 14

Mẫu nhà cấp 4 nhỏ 50m2 - mẫu 15

Mẫu nhà cấp 4 nhỏ 50m2 - mẫu 16

Mẫu nhà cấp 4 nhỏ 50m2 - mẫu 17

Mẫu nhà cấp 4 nhỏ 50m2 - mẫu 18

Mẫu nhà cấp 4 nhỏ 50m2 - mẫu 19

Mẫu nhà cấp 4 nhỏ 50m2 - mẫu 20

Mẫu nhà cấp 4 nhỏ 50m2 - mẫu 21

Mẫu nhà cấp 4 nhỏ 50m2 - mẫu 22

Mẫu nhà cấp 4 nhỏ 50m2 - mẫu 23

Mẫu nhà cấp 4 nhỏ 50m2 - mẫu 24

Mẫu nhà cấp 4 nhỏ 50m2 - mẫu 25

Mẫu nhà cấp 4 nhỏ 50m2 - mẫu 26
Các mẫu nhà cấp 4 nhỏ 50m2 triệu người mê đang được chúng tôi cập nhật thêm....